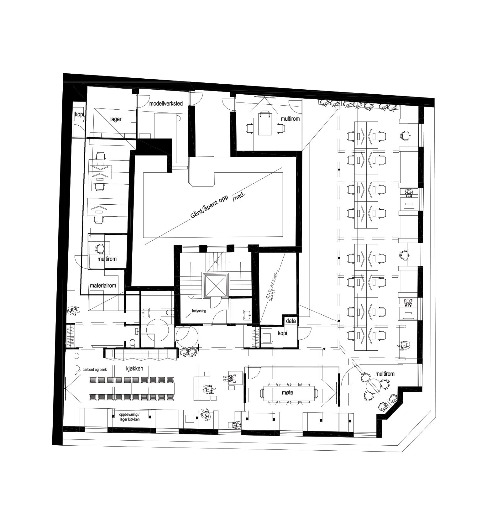
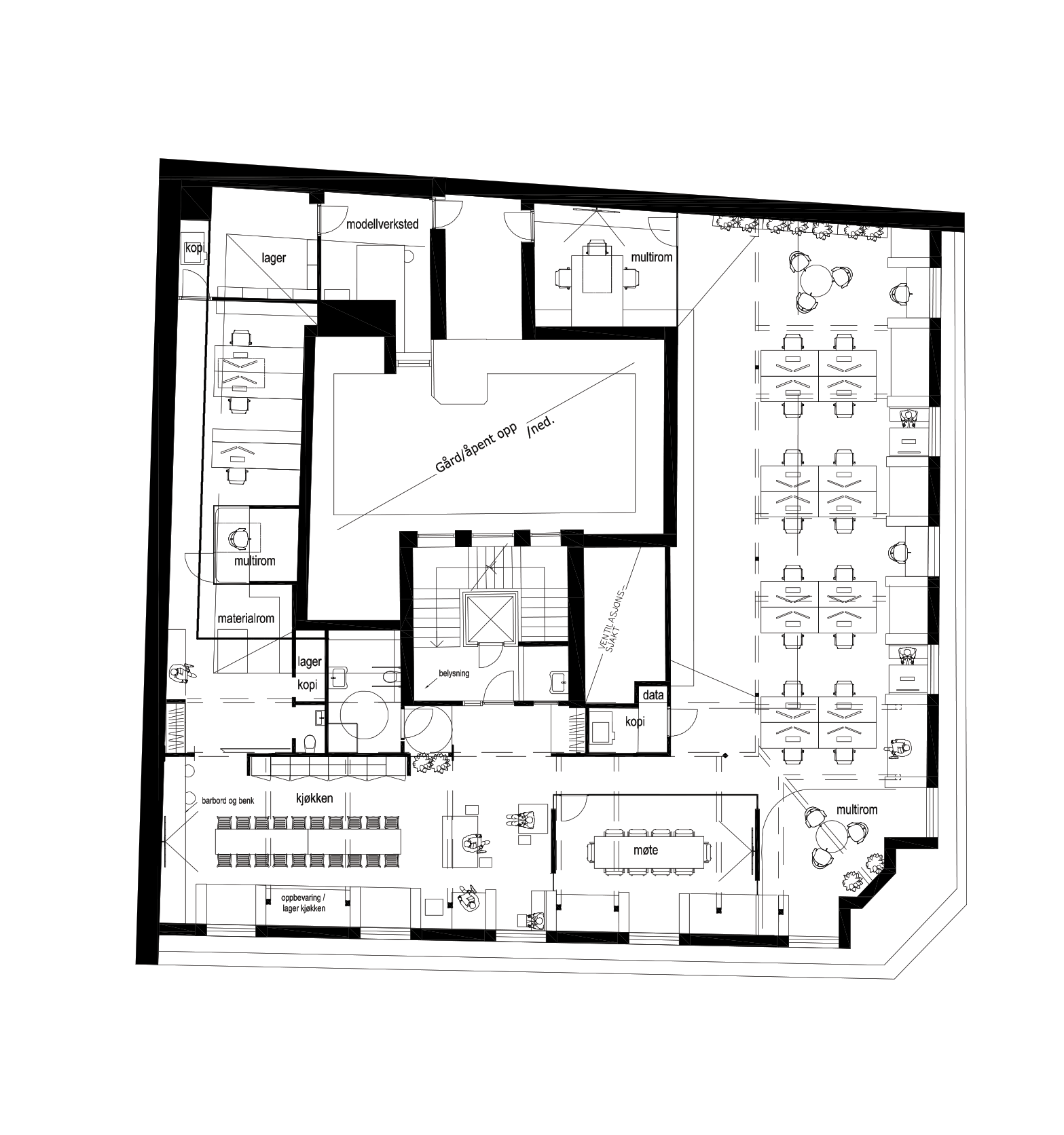
I toppetasjen av et ærverdig 1898-bygg etablerer vi oss med god takhøyde, karakteristiske lysinnslipp og en 465m² stor plan med god variasjon av arbeidsplasser. Det blir ellers en miks av møterom, multirom, material-bar, konsentrasjonssoner, satellittplasser og modellrom. Bygget har en flott fasade og svært representativt inngangsparti ved siden av en te-salong på gateplan.
Vi ønsker å danne et sosialt og tverrfaglig miljø bestående av en variasjon av fagdisipliner med et åpent sinn. Arkitektur, landskap, plan, interiør, design, grafikk, samfunnsvitenskap, sosiologi, antropologi, bærekraft og konstruksjon er blant aktuelle temaer vi ser for oss å kunne samle under samme tak.
Det skal være faglig vilje til å lage fine prosjekter med verdi målt etter flere parametere enn penger, og vi ønsker at det skal være gøy på jobb.
Vi kan tilby leie av et separat kontorareal innenfor fellesskapet med 2-3 arbeidsplasser, eller 1 – 10 plasser i en større tegnesal. ASAS benytter selv 8 plasser i kontorlandskapet.
Lokalene ligger i Kvadraturen og har adresse Kirkegata 5. Kontoret ligger i 6. etasje og i gangavstand fra Oslo S, Nationaltheatret og Nesoddbåtene. Bygget har gode, trygge sykkelparkeringsfasiliteter og karakteristisk trapperom og heis.
Utleien på etasjen er tilrettelagt med fellesfasiliteter som kjøkken, møterom, spiserom, garderobe/wc, kopirom og internettilgang.
Lokalene får et røft, men elegant uttrykk og pusses for tiden opp fra scratch. ASAS som utleier vil som utgangspunkt tilrettelegge for en komplett fremleiepakke med alle fasiliteter.
Dersom ditt kontor kunne passet inn sammen med oss, hører vi gjerne fra deg!
Ledig fom 01.04.2023 (endret fra 01.03.2023).
Ta kontakt ved interesse og for mer informasjon:
Karen Sletvold
karen.sletvold@as-as.no
+47 954 63 447
www.as-as.no







Lagt ut 1.12.2022.
ASAS arkitekturs kontor i Oslo flytter inn i nyoppussede lokaler fra og med mars 2023.