Geitmyrsveien

Bilde
Spesialtegnet kjøkken i finert eik produsert av møbelsnekker.

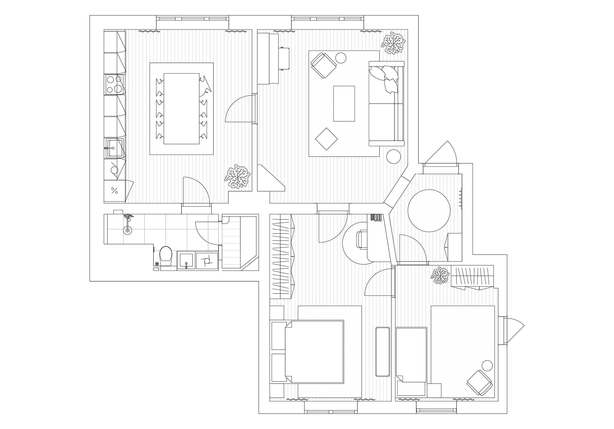
Nytt kjøkken og stue ble lagt i den energirike delen med utsikt ut mot parken og ettermiddagslyset. Bad ble utvidet med egen dusjnisje og badstue, og soverommene ble lagt til den rolige delen med morgensol mot bakgården.

Det ble designet innredning produsert av møbelsnekker, alt i naturlige materialer med lang levetid. Lukten av eik møter deg i det du åpner skapdørene, og den gjennomgående materialpaletten skaper en høy kvalitet i hele leiligheten.

Se mer fra prosjektet her.